logo
115230 г. Москва, Варшавское шоссе, 42, +7 (495) 252-04-54 info@np-arch.ru
PDF рус
eng
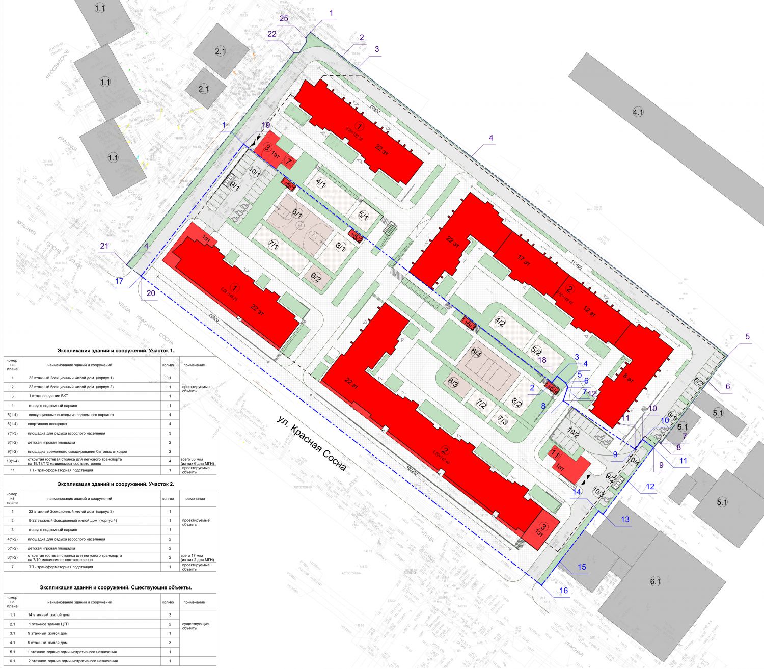
Mixed-use residential complex with underground parking

Moscow

Condition: under construction

2018

Parameters:
Total space 113 635 m2
apartament space 80 536 m2

Residential buildings

Civic buildings

Urban planning

Industrial buildings